Lot Details

8 Yorick Road, West Mersea, Colchester, Essex, CO5 8HT

Guide Price*
£250,000+

  • A Vacant Freehold Detached Commercial Shop with Five Rooms on the Upper Parts Suitable for Conversion (Subject to Obtaining All Relevant Consents)

Addendum

There is an additional buyers premium of £2,500 Plus VAT applicable on this lot. This is in addition to the buyers admin fee of £1,500 Plus VAT. Both fees are payable to the auctioneers.

Description

The property comprises a detached shop arranged to provide two upper floors which are currently five rooms. This prominently positioned building features a ground floor previously used as a restaurant, along with a courtyard garden at the rear. The upper floors were formerly licensed as a five-bedroom HMO, offering potential for both commercial and residential use. The top floor also enjoys sea views, adding to the property’s appeal.

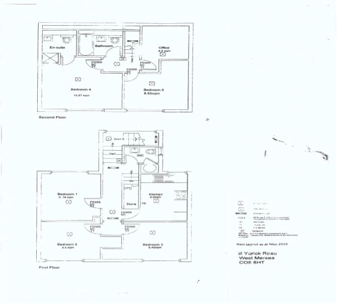
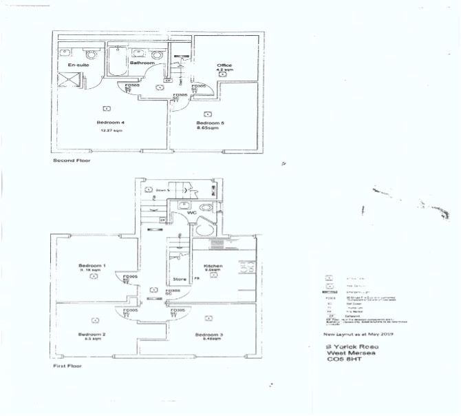
Ground Floor
Detached Shop (Approx 951 Square Feet)

First Floor
Three Rooms
Kitchen
WC and Wash Basin

First Floor
Two Rooms
Office Space
Bathroom W.C and Wash Hand Basin
Shower Room W.C and Wash Hand Basin
Located in a prominent central position in West Mersea, rear courtyard garden, sea view from top floor.
Transport links are provided by Colchester North Station.
Freehold
Rear Yard

Loading the bidding panel...

Agreement Documents

Additional Documents

Related Documents

Share

A buyer's administration charge of £1,500 (including VAT) applies unless otherwise stated in the addendum. The legal pack and addendum contain details on any additional buyer's premium and disbursements that may be payable upon completion. *Starting price estimates ("guides") are subject to change before the auction. These are not guaranteed selling prices. Each property has a reserve price, the minimum acceptable selling amount, which we expect to be within the guide range or up to 10% above.

While we strive for accuracy, information including images, video tours, and descriptions cannot be fully guaranteed. We will make every effort to inform potential buyers of any changes to the catalogue. Measurements and areas are approximations, and potential buyers are advised to verify them independently. The same applies to tenanted properties - we recommend you confirm occupancy status and rent payments directly. A professional property survey is highly recommended for potential buyers. Neither Swift Property Auctions or their clients are liable for any losses or costs related to withdrawn/sold properties, viewing cancellations, or inaccurate rating information obtained through verbal enquiry only.

While these particulars are provided in good faith, they don't constitute factual representations or form part of any offer or contract. Prospective buyers or tenants should independently verify all information mentioned here. Furthermore, neither Swift Property Auctions nor its employees or agents hold any authority to make any guarantees or warranties regarding this property. Access to properties post-exchange is not guaranteed.

Enquire about this property

Whether you're just starting out in the auction process, looking for advice on potential returns or seeking an auction valuation on your property, feel free to get in touch.

 
*  
*  
*
*
*

Stay up to date with our latest news and deals!