Lot Details

513 Canterbury Street, Gillingham, Kent, ME7 5LG

Guide Price*
£395,000+

  • *YET ANOTHER PROPERTY SOLD VIA SWIFT PROPERTY AUCTIONS, SIMILAR REQUIRED*
    A Vacant Eight Room Licensed End of Terraced HMO With a Potential Income of £64,000 per annum.

Addendum

The property has been previously operated as a licensed HMO. The HMO license has expired, and prospective buyers should conduct their own due diligence regarding reapplication and compliance with local authority requirements. We have been advised from the seller that the potential income based on each room renting for £155 per week would be £64,000 per annum buyers are advised to make their own enquires as to the potential rent

There is an additional buyers premium of £1,500 including VAT applicable on this lot. This is in addition to the buyers admin fee of £1,500 including VAT. Both fees are payable to the auctioneers.

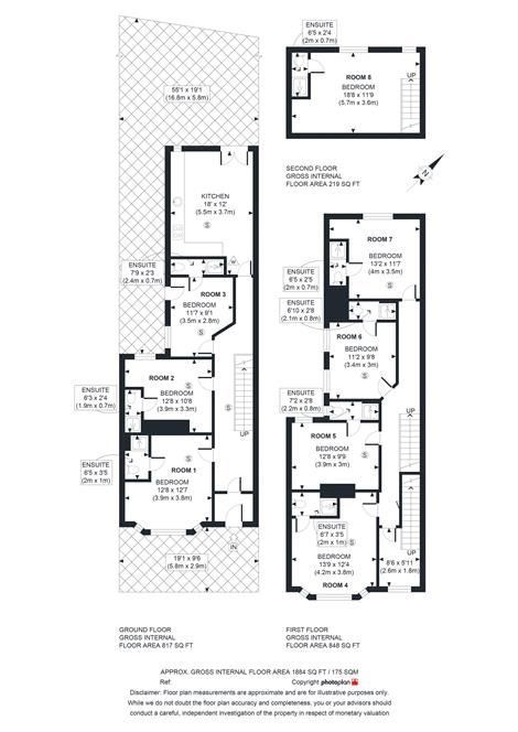
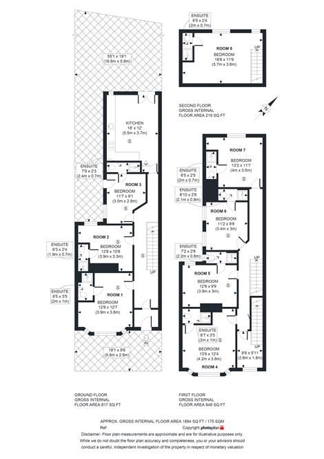
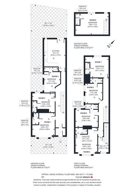
Description

The property comprises a eight room licensed HMO situated in an end of terraced building arranged over ground first and second floors. We have been advised from the seller that the potential income based on each room renting for £155 per week would be £64,000 per annum.

Ground Floor
Kitchen
Three Rooms with Ensuite Shower Rooms and Wash Hand Basin

First Floor
Three Rooms with Ensuite Shower Rooms and Wash Hand Basin

Second Floor
One Room with Ensuite Shower Rooms and Wash Hand Basin

The property is situated on a residential road close to local shops and amenities. The open spaces of Gillingham Park are within easy reach. Transport links are provided by Chatham rail station.
Freehold
The property benefits from a rear garden

Loading the bidding panel...

Agreement Documents

Additional Documents

Related Documents

Share

An administration charge of £1,500 (including VAT) applies unless otherwise stated in the addendum. The legal pack and addendum contain details on any additional buyer's premium and disbursements that may be payable upon completion. *Starting price estimates ("guides") are subject to change before the auction. These are not guaranteed selling prices. Each property has a reserve price, the minimum acceptable selling amount, which we expect to be within the guide range or up to 10% above.

While we strive for accuracy, information including images, video tours, and descriptions cannot be fully guaranteed. We will make every effort to inform potential buyers of any changes to the catalogue. Measurements and areas are approximations, and potential buyers are advised to verify them independently. The same applies to tenanted properties - we recommend you confirm occupancy status and rent payments directly. A professional property survey is highly recommended for potential buyers. Neither Swift Property Auctions or their clients are liable for any losses or costs related to withdrawn/sold properties, viewing cancellations, or inaccurate rating information obtained through verbal enquiry only.

While these particulars are provided in good faith, they don't constitute factual representations or form part of any offer or contract. Prospective buyers or tenants should independently verify all information mentioned here. Furthermore, neither Swift Property Auctions nor its employees or agents hold any authority to make any guarantees or warranties regarding this property. Access to properties post-exchange is not guaranteed.

Enquire about this property

Whether you're just starting out in the auction process, looking for advice on potential returns or seeking an auction valuation on your property, feel free to get in touch.

 
*  
*  
*
*
*

Stay up to date with our latest news and deals!